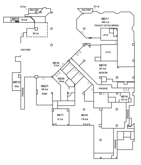
World Trade Centre Melbourne

Mezzanine Level

M010:161.8㎡ M012:48㎡
M016:6.5㎡
M017:716.8㎡ M020:145㎡
M021:165.9 ㎡
Suitable For: Fitness Studio,
Pharmacy, Beauty Salon, Spa,
Electronics Store, Boutique
Bookstore, Clinic, Health Center
(Physical Therapy, Massage, and
Wellness), Brand Showroom,
Educational Training, etc.

可选Optional
可选Optional
可选Optional

相关产品Related Products

查看全部View More
Fully-Furnished Restaurant Shops (G028,G029)

For lease

Retail (G030)

For lease

The Wharf Hotel

Restaurants

Flexi River View Office (T4-L11 B+C)

Office Building

World Trade Centre Melbourne