World Trade Centre Melbourne

Business Landscape Office (Tower3 Level 9)

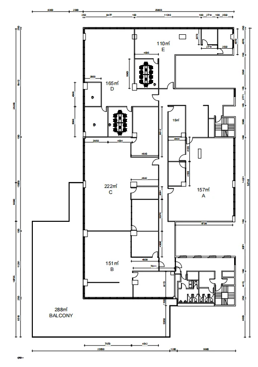
Tower3 Level9
A=166.5 m²
B=148.6 m²
C=321m²
D=213.2m²
E=133.8m²
Suitable for industry:
Technology companies
(software development, IT support )
Marketing or advertising agency
Design studio
Accounting firm
Law firm
Loan finance office
Education or training company
Real estate project department

可选Optional
可选Optional
可选Optional

相关产品Related Products

查看全部View More
Flexi River View Office (T4-L11 B+C)

Office Building

Cityscape Office(T4-L8-B)

Office Building

PanoramicHorizonOffice (T4-L4)

Office Building

Business City view Office (T4-L11-A)

Office Building

World Trade Centre Melbourne